Logo

Abbey Wood Road, Abbey Wood SE2
2 Bedroom Flat
£230,000+
Under Offer
Thumbnail 1
Thumbnail 2
Thumbnail 3
Thumbnail 4
Thumbnail 5
Thumbnail 6
Thumbnail 7
Thumbnail 8
Thumbnail 9
Thumbnail 10
Thumbnail 11
Set just moments from Abbey Wood Station, this spacious two-bedroom first-floor flat offers an excellent opportunity for buyers looking to add value. The property is chain free and would suit first-time buyers or anyone seeking a project with strong long-term potential.

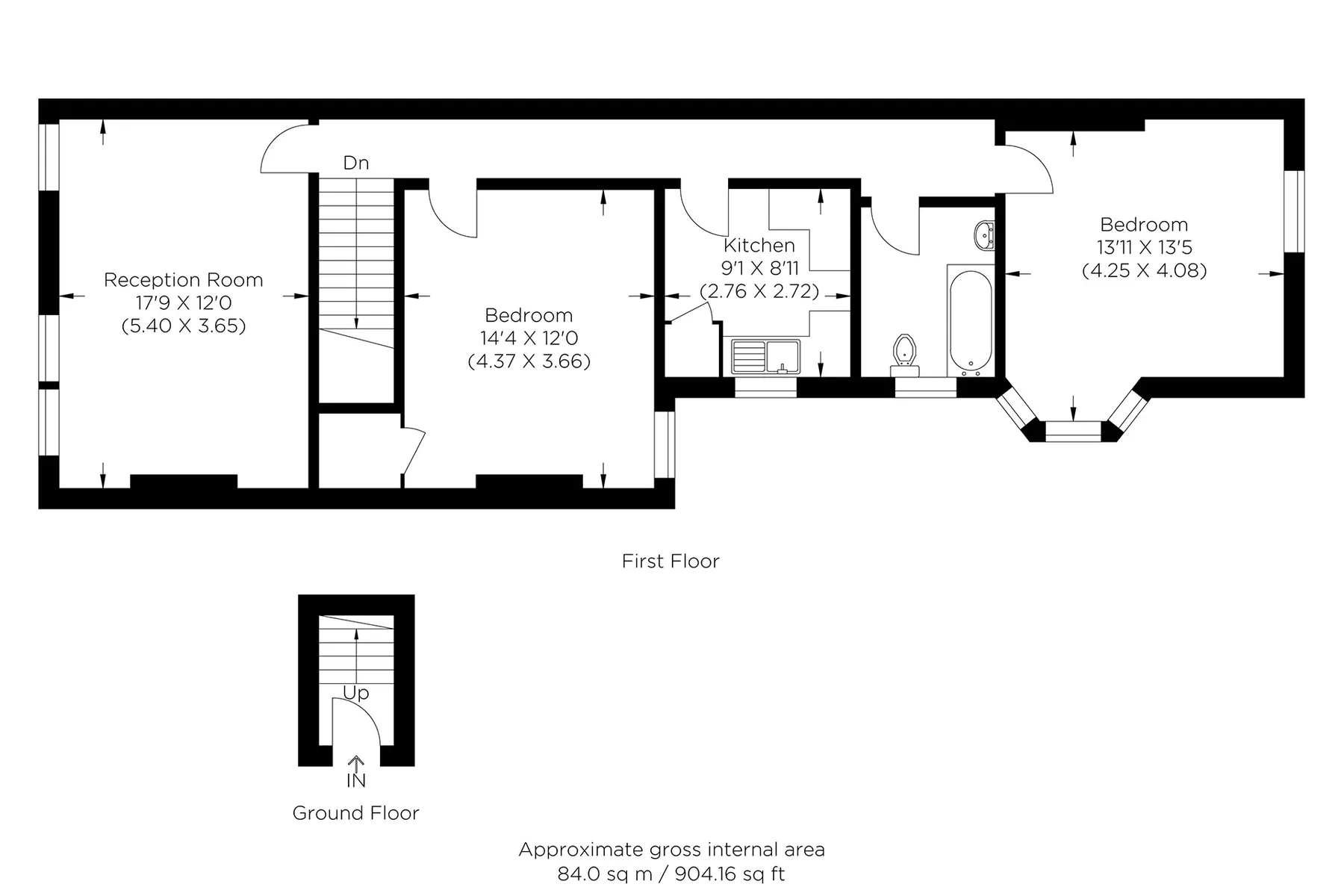
The flat benefits from a generous floorplan, including a bright reception room, a separate kitchen, two well-sized double bedrooms and a bathroom. The layout offers plenty of scope for modernisation, giving the incoming buyer the chance to create a home finished entirely to their own taste.

Abbey Wood has benefitted enormously from the arrival of the Elizabeth Line, now providing fast and direct links to Canary Wharf, Liverpool Street, Paddington and Heathrow. The station is only a short walk from the property, making this an ideal choice for commuters. The area continues to grow in popularity, with improving local amenities, cafés, parks and easy access to Plumstead and Thamesmead.

With its spacious layout, excellent location and the advantage of no onward chain, 83a Abbey Wood Road represents a fantastic opportunity to secure a home with outstanding future potential in one of South East London’s fastest-developing neighbourhoods.
Chain-free
High Ceilings
Long lease
Ideal renovation project
Excellent transport links nearby
Gas central heating
Council Tax Band: B
Borough: Royal Borough of Greenwich
Service Charge: £1,511